Presentatiebeeld van het pand n° 294400

In verband met dit goed

Referentie: 294400


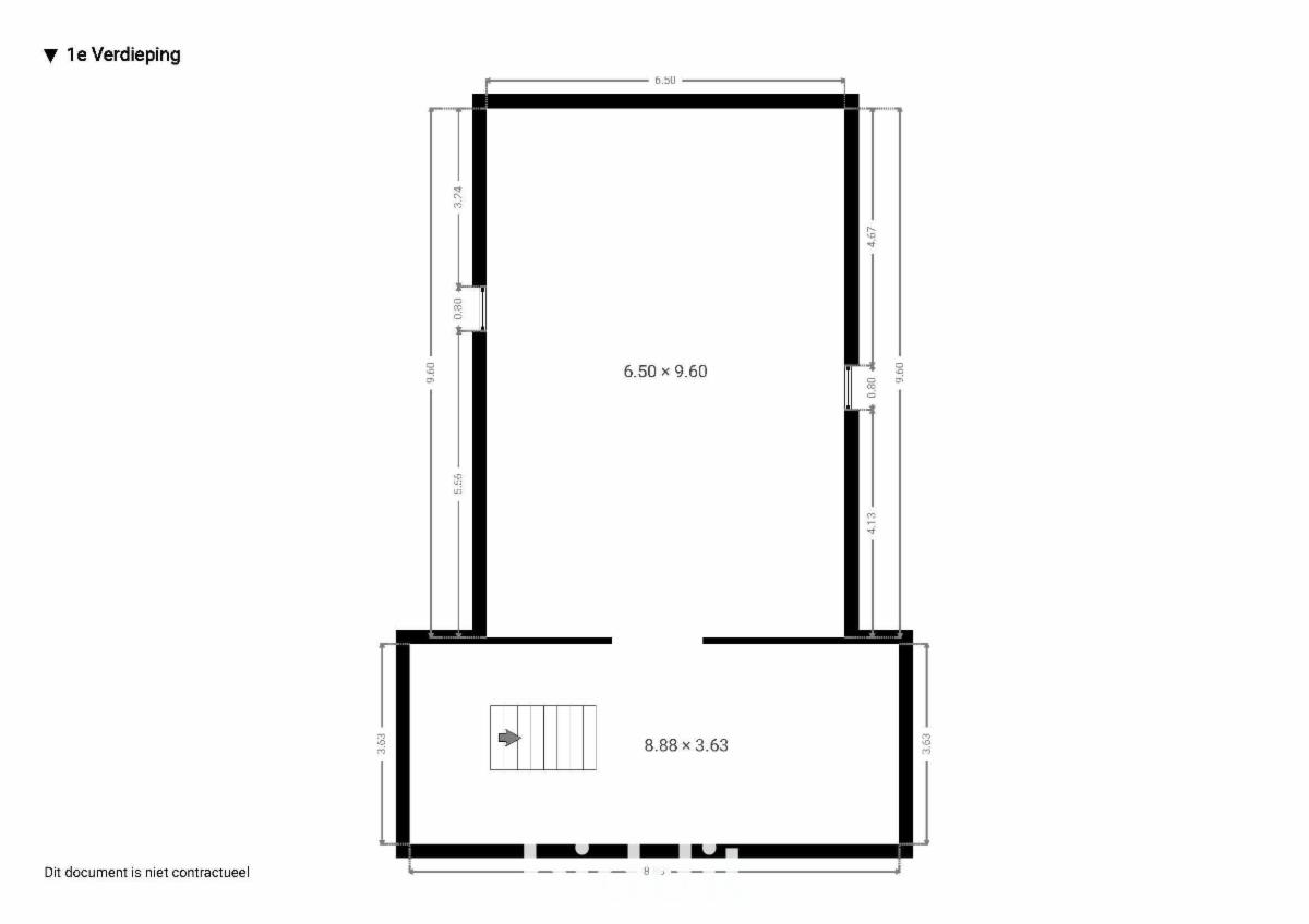
Omvat: keuken, living, 2 slaapkamers, 2 badkamers, toilet en een berging.
Buiten bevindt zich een perceel met bos, wat zorgt voor rust, privacy en een groene omgeving. G score: A P score: A

Algemene informatie

  • Vrij vanafBij de akte
  • Gebouw1972
  • PandtypeHuizen
  • verdieping(en)1
  • Oppervlakte van het woongedeelte234m2
  • Kadastraal inkomen1.445 €
  • Aantal gevels4

Samenstelling

  • 2 slaapkamers
  • 2 badkamers
  • 1 WC
  • Woonkamer

Bijkomende informatie

  • StaatTe renoveren
  • Aantal parkeerplaatsen binnen1

Gebouw en tuin gegevens

  • Oppervlakte kadaster5516m2

Energiegegevens

  • Energiescore (kengetal) van het EPC899 kWh/m2
  • RF-Energie labelF De wettelijke verplichting tot renovatie is mogelijks van toepassing op dit goed.
  • Unieke code van het EPC-certificaat20220427-0002592399-RES-1

Stedelijke informatie

  • Verkavelingsvergunning
  • Stedenbouwkundige vergunning
  • De meest recente stedelijke bestemming van het pand met de benamingen gebruikt in het register met plannenWoongebied

Documenten en bijlagen

Online verkoop

Doe een bod van

365.000 €

Verkoop informatie

Logo van partner Biddit

Startdatum: 20/04/2026 11:00

Einddatum: 28/04/2026 11:00

Geen bod: 1.000 €

De fiche bekijken op Biddit.be

Verkocht door de notaris Notaris Dominique Maes

Bezoekgegevens

op zaterdag 28/3, 4/4, 11/4, 18/4, 25/4 van 10u-12u.

Virtueel bezoek

Ontdek het vastgoed tijdens een virtueel bezoek

Nu bezoeken