Presentatiebeeld van het pand n° 294143

In verband met dit goed

Referentie: 294143


Op een ruim perceel.
- Gelijkvloers: inkom, living, keuken, toilet, berging, toilet;
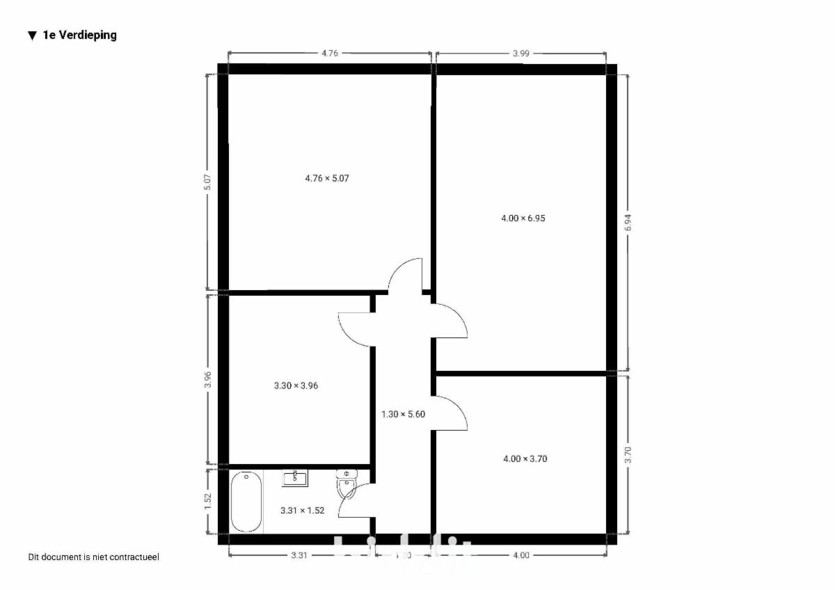
- Eerste verdieping: badkamer, 4 slaapkamers;
- Tweede verdieping: 3 kamers. G score: A P score: B

Algemene informatie

  • Vrij vanafBij de akte
  • PandtypeHuizen
  • verdieping(en)2
  • Oppervlakte van het woongedeelte231m2
  • Kadastraal inkomen1.145 €
  • Aantal gevels4

Samenstelling

  • 4 slaapkamers
  • 1 badkamer
  • 2 WC
  • Woonkamer

Bijkomende informatie

  • StaatTe renoveren
  • Type verwarmingMazout

Gebouw en tuin gegevens

  • Oppervlakte kadaster2133m2

Energiegegevens

  • Energiescore (kengetal) van het EPC495 kWh/m2
  • RF-Energie labelE De wettelijke verplichting tot renovatie is mogelijks van toepassing op dit goed.
  • Unieke code van het EPC-certificaat20240325-0003188438-RES-1

Stedelijke informatie

  • De meest recente stedelijke bestemming van het pand met de benamingen gebruikt in het register met plannenWoongebied

Online verkoop

Doe een bod van

300.000 €

Verkoop informatie

Afgesloten verkoop
Logo van partner Biddit

Startdatum: 22/04/2026 12:00

Einddatum: 30/04/2026 12:00

Geen bod: 1.000 €

De fiche bekijken op Biddit.be

Verkocht door de notaris WUYTS, Filip

Bezoekgegevens

elke woensdag van 14u-16u en elke zaterdag van 10u-12u vanaf 1/4 tem 29/4.

Virtueel bezoek

Ontdek het vastgoed tijdens een virtueel bezoek

Nu bezoeken